A compact modern home embedded in a forested site with large windows, balconies, and trellises taking advantage of a peekaboo view of the Puget Sound.

Vashon “Dingle”

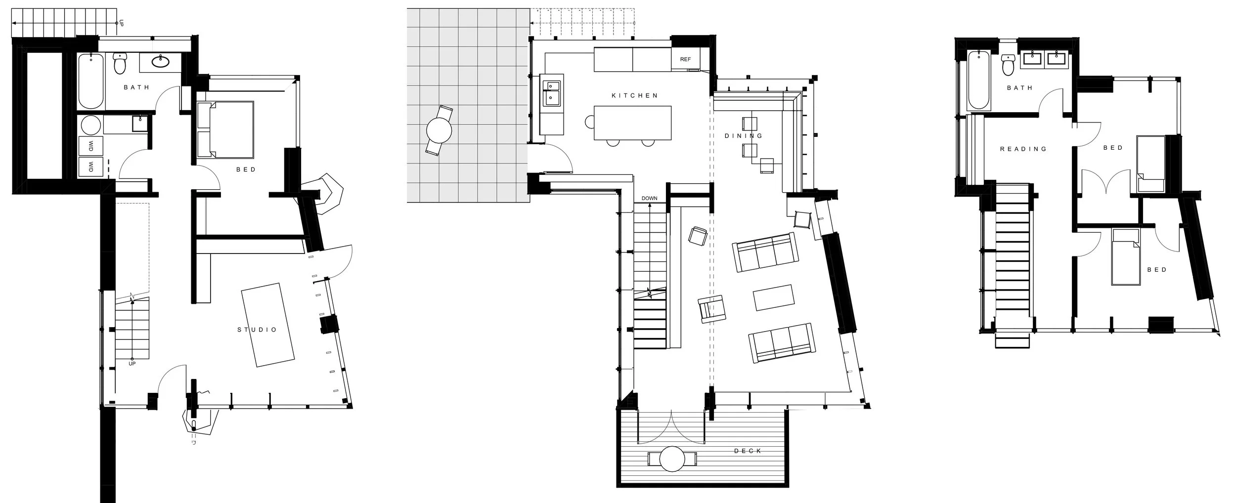
The occupants move through the house in a rotating, pinwheel like way, with views that reach out from the house in all directions.

Sketch for Green Building Vashon Island Shed Roof

This house, located on an island accessible by ferry from Seattle, exemplifies our response to the beautiful Pacific Northwest. It is located on a “dingle,” a little wooded valley leading down to the water, with a view of the sound. With a footprint equal to that of a house in an urban neighborhood, the vast majority of the property will be untouched and preserved.

Sketch for Vashon Island Green Building Entry
Sketch for Natural Stairwell Green Building

The house uses exposed mass timber panels that form a structural pinwheel. Skylights and corner windows flood the space with natural light.

The house is organized to allow a large work room or studio on the first floor near the entry. Living areas are on the upper level, and look both forward to the water and back to the long forested slope with seasonal stream behind.

The house features a Passive House envelope (super-insulated & airtight with continuous ventilation), vegetated roofs, and composting toilets.

The chief challenge for the architect was to create an economical home that fit precisely into an allowed area feasible to build.